間取り比較!特集ページ
ハウスメーカー担当者に弊社売主の
『PRECIOUS宝塚・安倉南』&『PRECIOUS西宮北IV』にて
プランを作成していただきました!
あなたはどの間取りがお好みですか?
ハウスメーカー・工務店の
間取りプランを比較!
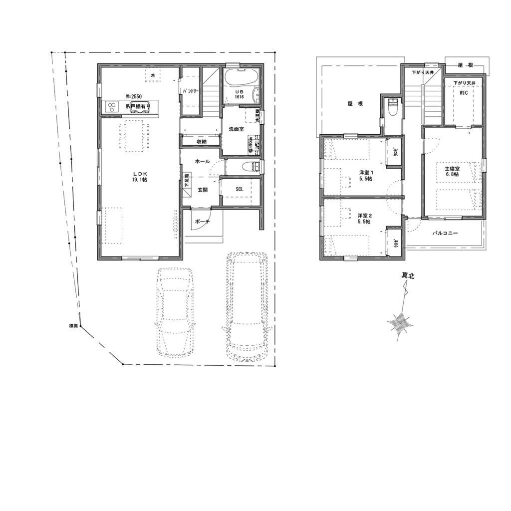
01.『PRECIOUS宝塚・安倉南』
参考プランA

『ウッドデッキのある明るい家』
延床面積:100.19㎡(約30.30坪)
1階床面積:52.99㎡ / 2階床面積:47.20㎡
南側に大きなウッドデッキと開口部を設けました。
外と室内の間に空間が生まれてより開放的に感じられます。
駐車スペースが2台分あるのも嬉しいですね♪
1階の家事室って何ですか?
家事室は、なにか作業するのにぴったりのお部屋です!
「リモートワーク」や「趣味部屋」など、家事だけでなく
アイデア次第で自由に使えます♪
こちらは外観イメージパースです。

ハウスメーカー・工務店の
間取りプランを比較!
02.『PRECIOUS西宮北IV』
参考プランA

『和室と家事カウンターのある家』
延床面積:100.19㎡(約30.30坪)
1階床面積:54.65㎡ / 2階床面積:45.54㎡
「この間取りで建ててみたい!」や
「もっと他の間取りも見てみたい!」など
別の土地でのご検討でも大歓迎です♪
ハウスメーカー選びについてのご相談も承っております!
ぜひお気軽にお問合せください。
↓↓↓↓↓↓↓↓↓↓









































